Herontwikkeling Markt Velden

Dit schattige pand wordt in 2025 herontwikkeld tot 3 short stay appartementen voor de toeristische verhuur. Velden en Arcen zijn een druk bezocht gebied in het Noorden van Limburg met veel natuurschoon en attracties voor de vele korte vakanties die hier gevierd worden. De 3 appartementen zullen volledig verduurzaamd worden en ingericht om optimaal te […]
Centraal op de Markt in Eindhoven

Deze altijd drukke locatie heeft in overleg met Bibitor gekozen voor maatwerk verduurzaming. Horeca is een specialisme en het verduurzamen van historisch vastgoed een nog groter specialisme. Fijn dat ook zo veel ondernemers het belang hiervan goed inschatten.
Ochtendwerk in de mist

De start van onze aanpak van de Silva Ducis aan de prachtig gerenoveerde Parade In Den Bosch was sprookjesachtig. De enorme kraan kwam aan in de mist en met dank aan de buurman, de bisschop, konden we bij ons project komen om te starten met de verduurzaming van onze parel aan de Parade.
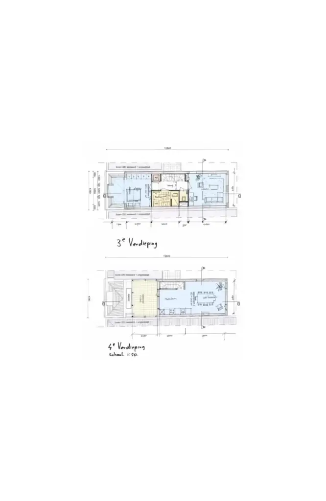
Droomappartement in de leukste wijk van Den Haag

Eerste reactie van het team: hier wil ik wel zelf wonen. In het Hofkwartier ligt de Papestraat met de leukste winkeltjes van Den Haag om je heen. Wij gaan hier een klein appartement van twee verdiepingen ontwikkelen. Voor een beter beeld zijn de eerste schetsen van onze architect toegevoegd. Ennn zoals bij ons bekend weten […]
Wees er snel bij. In het historische hart van Ridderkerk is een prachtig zeer ruim appartement gerealiseerd met een A++++ label. De verhuur gaat via 070wonen in Den Haag.
			Een duurzaam pareltje in historisch Ridderkerk

Het verduurzamen van stadsappartementen in historische steden gaat ons steeds beter af. Dit juweeltje in het oude hart van Ridderkerk kreeg een A++++ label. En er komen nog meer projecten aan. Met een lange termijn focus is alles realiseerbaar.
Café Eijck wint Entree Award Best New Café

Het koppel Sem Teunissen en Roos-Marijn Somer hebben deze horeca oscar gewonnen. De jury is onder de indruk van de lef en overtuiging van deze jonge ondernemers. Het fraaie hoekpand in Arnhem is omgetoverd tot een ontspannen en laagdrempelig eetcafé. Het is inmiddels de huiskamer van de buurt met een brede interesse voor haar gasten.
Verduurzamen omdat het in de genen zit

Bibitor is al jaren aan het verduurzamen samen met haar huurders. Wij bouwen aan de horeca van morgen en daar hoort verduurzamen bij. Na het fantastische evenement Glow zijn we samen met Mathilde aan de Kleine Berg 26 in Eindhoven begonnen met de complete isolatie van het dak. Dat betekent dus eerst alles eraf want […]
4 prachtige appartementen in een rijksmonument in Nijmegen

In één van de mooist gelegen rijksmonumenten van Nijmegen ontwikkelen wij 4 prachtige appartementen. De ingang is de Middeleeuwse stadspoort en de appartementen zijn verdeeld over het Waalkadepand en het Steenstraatpand. Dit pand heeft zijn voeten in de Romeinse nederzetting aan de Waal. Een droomlocatie om te mogen wonen. Verwachte oplevering tweede deel 2024. Met behoud van de monumentale waarde en toch de luxe van nu zal dit een zeer gewilde plek zijn.
Hotel Bom in Burgh Haamstede breidt uit en vernieuwd haar kamers

De transformatie van Hotel-restaurant Bom in het prachtige Burgh Haamstede is in volle gang. Van 10 kamers naar 22 compleet vernieuwde kamers. Opening voorjaar 2024

															






