Aan het centrale Marktplein in het dorpshart van Waalre bieden wij een horecalocatie aan met uitstekende zichtbaarheid en bereikbaarheid. De locatie bevindt zich op een levendig plein waar horeca, winkels en dagelijkse voorzieningen samenkomen en fungeert als een belangrijke ontmoetingsplek voor bewoners en bezoekers.
Locatie
Markt 16, 5581 GK Waalre
Gelegen op een prominente plek aan het Marktplein, met goede bereikbaarheid voor zowel lokale bezoekers als gasten uit de regio Eindhoven.
Oppervlakte
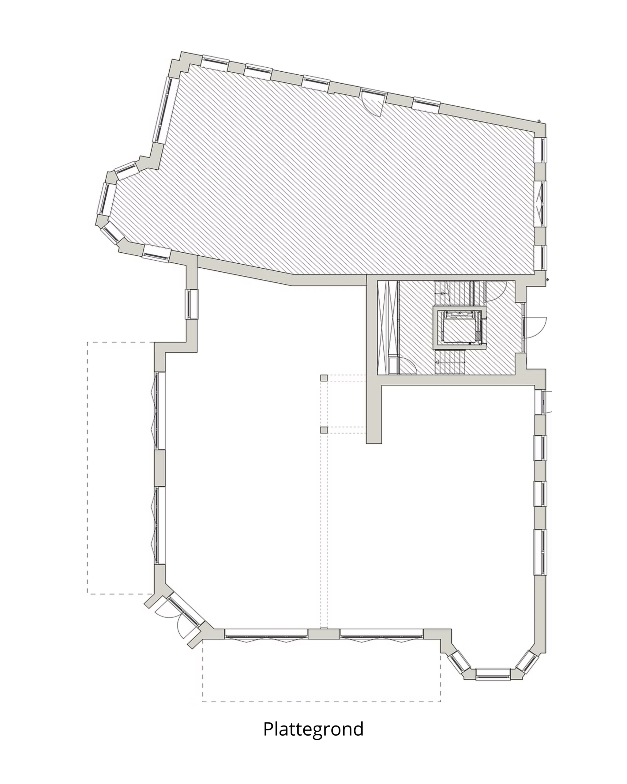
Horecaruimte: ca. 225 – 385 m²
Terras: ca. 70 – 95 m²
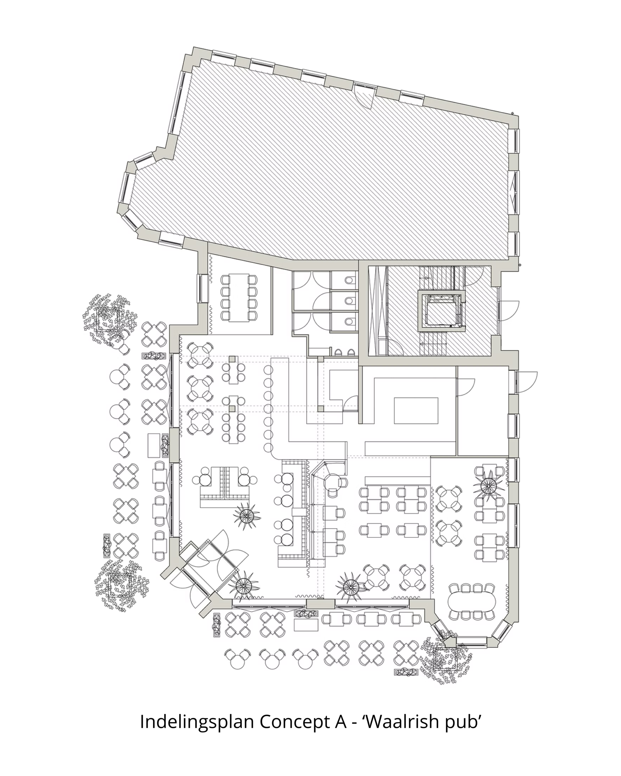
De indeling van het pand biedt ruimte voor verschillende horecaconcepten en kan flexibel worden ingericht.
Bereikbaarheid en parkeren
De locatie is goed bereikbaar per auto via de nabijgelegen A2 (Eindhoven–Maastricht). Het centrum van Waalre is vanaf de afrit Aalst/Waalre binnen enkele minuten bereikbaar. In de directe omgeving van het Marktplein zijn ruime openbare parkeervoorzieningen aanwezig. Parkeren is kosteloos en op korte loopafstand van het pand. Daarnaast bevinden zich bushaltes met verbindingen richting Eindhoven op loopafstand en is de locatie goed bereikbaar per fiets.
Mogelijkheden
De locatie biedt ruimte voor verschillende horecaconcepten, zoals een bistro, restaurant of gastvrije ontmoetingsplek voor de buurt. Door de combinatie van een centraal dorpsplein, een loyaal lokaal publiek en een verzorgd horecaprofiel ontstaat een kans voor een stabiele en toekomstbestendige exploitatie.
Meer informatie
Voor meer informatie bekijk de brochure of neem contact op met info@bibitor.nl.











