Aan het Marktplein in het centrum van Helmond bieden wij een horecalocatie aan op een zichtbare en levendige plek in de stad. Het plein vormt een belangrijk stedelijk knooppunt waar horeca, winkels, evenementen en markten samenkomen. Door de constante stroom passanten en de dynamiek van het centrum biedt deze locatie uitstekende kansen voor een toegankelijk en toekomstgericht horecaconcept.
De combinatie van lokaal publiek, bezoekers uit de regio en piekmomenten tijdens evenementen zorgt voor een divers en actief gastprofiel gedurende meerdere momenten van de dag.
Locatie
Markt 22 5701 RK Helmond
Gelegen aan het centrale Marktplein, midden in het centrum van Helmond, met een mix van horeca, retail en stedelijke voorzieningen.
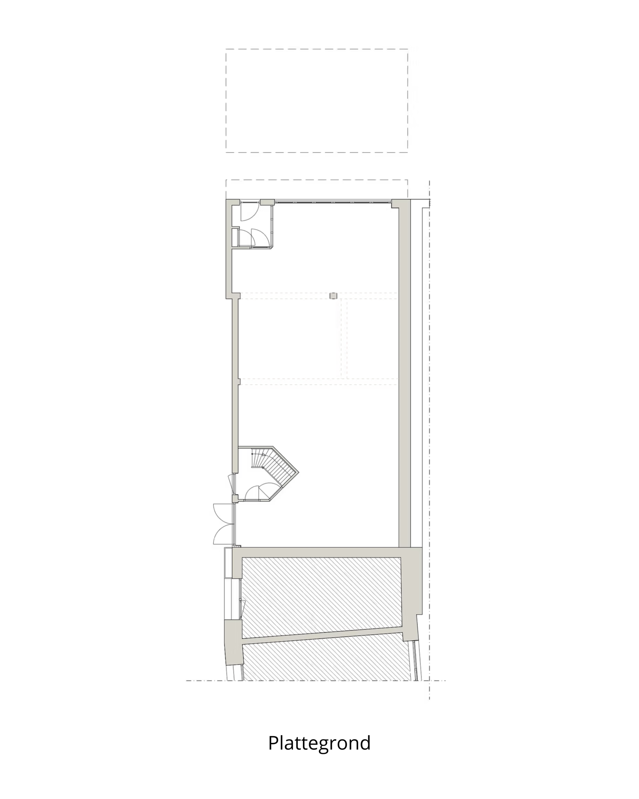
Oppervlakte
Horecaruimte: ca. 135 m²
Terras: ca. 50 m²
De indeling van het pand biedt ruimte voor verschillende horecaconcepten, zoals een café, bistro, lunchroom of barconcept.
Bereikbaarheid
De locatie is uitstekend bereikbaar voor zowel lokale bezoekers als gasten uit de regio. Helmond is goed bereikbaar via de A270 (Eindhoven–Helmond) en de A67. Vanuit deze uitvalswegen is het centrum eenvoudig aan te rijden. Het pand ligt op korte afstand van Station Helmond, met frequente trein- en busverbindingen richting Eindhoven en de regio.
Mogelijkheden
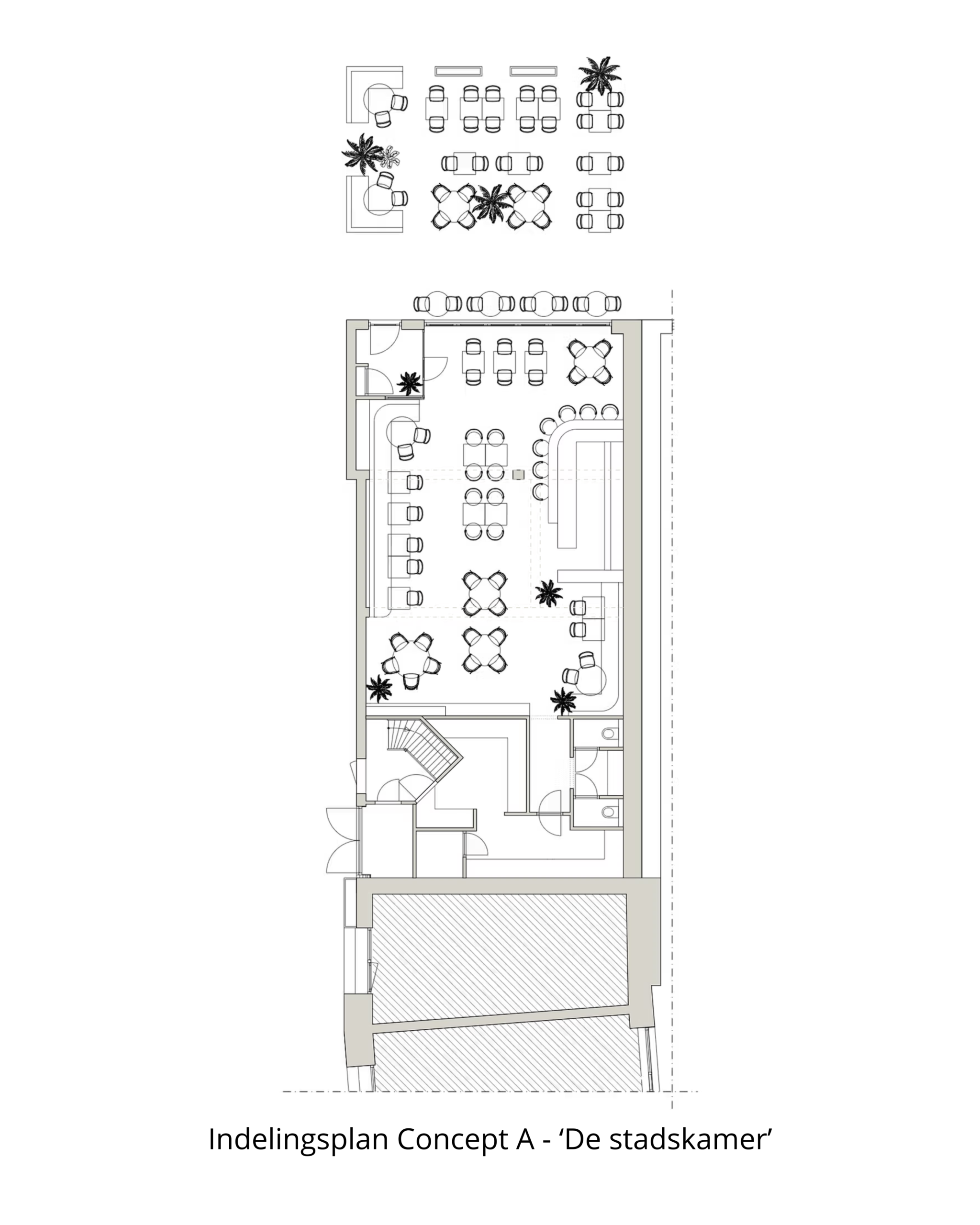
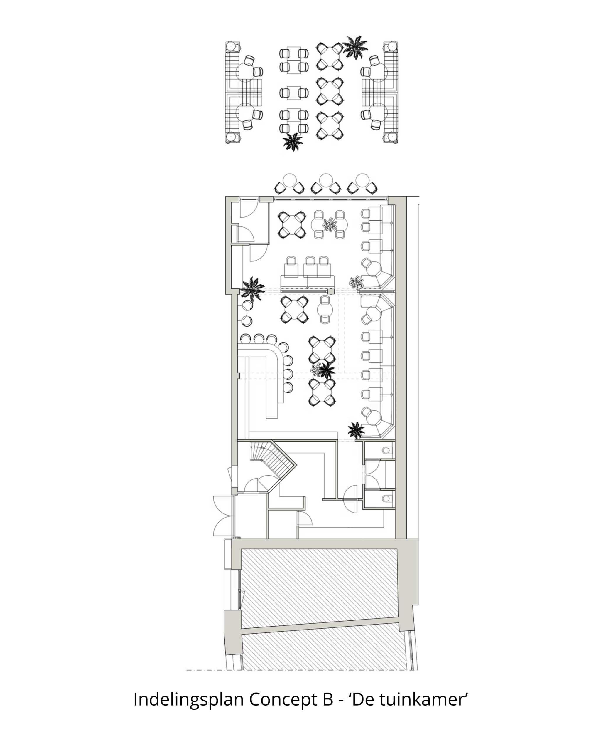
De locatie aan Markt 22 biedt ruimte voor verschillende horecaconcepten, zoals een stadse eetbar, bistro of toegankelijke ontmoetingsplek voor het centrum. Door de ligging aan het Marktplein, de constante stroom passanten en de mix van lokale bezoekers en gasten uit de regio ontstaat een sterke basis voor een levendig horecaconcept met potentie gedurende meerdere dagdelen. De combinatie van zichtbaarheid, terrasruimte en een breed stedelijk publiek biedt kansen voor een duurzame en toekomstgerichte exploitatie.
Meer informatie
Voor meer informatie bekijk de brochure of neem contact op met info@bibitor.nl.











